
تعتبر مزاريب الهيكل الفولاذي عنصرًا حاسمًا في نظام تصريف سطح المبنى. وتتمثل وظيفتها الأساسية في جمع مياه الأمطار من السقف، وتوجيهها إلى أنابيب عمودية، ومن ثم تصريفها إلى نظام الصرف الخارجي، مما يمنعها من تآكل الجدران أو نقع الأساسات بشكل مباشر. يتميز تصميم وتركيب منتج Liweiyuan بالقوة العالية والوزن الخفيف، مما يضمن الصرف السلس والمتانة الاستثنائية.
تعتبر مزاريب الهيكل الفولاذي عنصرًا حاسمًا في نظام تصريف سطح المبنى. وتتمثل وظيفتها الأساسية في جمع مياه الأمطار من السقف، وتوجيهها إلى أنابيب عمودية، ومن ثم تصريفها إلى نظام الصرف الخارجي، مما يمنعها من تآكل الجدران أو نقع الأساسات بشكل مباشر. يتميز تصميم وتركيب منتج Liweiyuan بالقوة العالية والوزن الخفيف، مما يضمن الصرف السلس والمتانة الاستثنائية.
إن مزراب الهيكل الفولاذي الخاص بـ Liweiyuan مصنوع من مواد مقاومة للتآكل ومقاومة للصدمات.
منتجنا مجلفن بالغمس الساخن، مما يوفر مقاومة ممتازة للتآكل، تكلفة منخفضة، وعمر خدمة طويل. متوفر بسمك 1.5-2.5 ملم، وهو مناسب لمعظم التطبيقات.
مصنوع من الفولاذ المقاوم للصدأ، هذا المنتج يوفر مقاومة للتآكل ومناسب بشكل خاص للبيئات الساحلية أو الرطبة. متوفر بسماكة 1.0-2.0 مم، وهو يقدم سعرًا أعلى ولكن عمر خدمة طويل.
تعتمد منتجاتنا الفولاذية المطلية بالألوان على الفولاذ المجلفن، المطلي بطبقة مقاومة للعوامل الجوية، مثل البوليستر أو الفلوروكربون، لمقاومة التآكل والتأثيرات الزخرفية. وهي متوفرة بسماكة 1.2-2.0 ملم، وهي مناسبة للمباني التي تتطلب مستوى عاليًا من المظهر الجمالي.
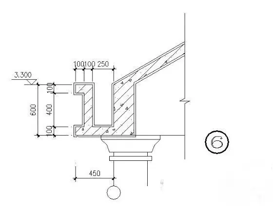
يجب أن يتكيف الشكل الهيكلي لميزاب الهيكل الفولاذي مع تصميم منحدر السقف والأفاريز. تشمل الأنواع الشائعة شكل U وشكل V. عملية التثبيت هي كما يلي:
تستخدم مزاريب الهيكل الفولاذي لدينا أقواس مزراب فولاذية زاوية لتثبيتها على عوارض أو مدادات أفاريز الهيكل الفولاذي. تبلغ المسافة بين الأقواس 600-1000 مم لضمان توزيع الضغط بشكل متساوٍ عبر الحضيض.
يتم تحديد حجم المزاريب الجاهزة مسبقًا وتوصيلها في الموقع باستخدام الموصلات أو اللحام. مطلوب مانع التسرب عند التقاطع بين الحضيض وسطح السقف.
يمكننا تركيب وميض فوق سطح السقف. يجب وضع الطرف السفلي من الميزاب أسفل سطح السقف ومختوم بمادة مانعة للتسرب. يجب توفير فتحات تصريف في الجزء السفلي من الحضيض، وذلك لتوصيلها بشكل أساسي برافعات مياه الأمطار.
تعتبر مزاريب الهيكل الفولاذي عنصرًا حاسمًا في نظام تصريف سطح المبنى. وتتمثل وظيفتها الأساسية في جمع مياه الأمطار من السقف، وتوجيهها إلى أنابيب عمودية، ومن ثم تصريفها إلى نظام الصرف الخارجي، مما يمنعها من تآكل الجدران أو نقع الأساسات بشكل مباشر. يتميز تصميم وتركيب منتج Liweiyuan بالقوة العالية والوزن الخفيف، مما يضمن الصرف السلس والمتانة الاستثنائية.